更新日 2012-07-26 17:39:17
湘栄技工株式会社
弊社は自社にて建設業、宅建業、設計事務所業を併設し、耐震診断から補強工事まで行なっております。又、現在、神奈川県内の5つの公益法人が共同で実施しているバリアフリーリフォーム支援事業にも参加しており、工事費の半分(上限200万円)の補助が受けられる工事もやっています。相模原市介護保険住宅改修受領委任払い事業所でもあります。
- 所在地
- 〒252-0153
相模原市緑区根小屋1749-1
- TEL
- 042-784-9668
- FAX
- 042-784-0694
- 営業時間
- 8:00~
- 定休日
- 日・祝祭日
運営者の概要
- 法人名 / 屋号
- 湘栄技工株式会社
- 代表者
- 濱滝貞則
- 所属団体
- 開設年月日
- 1986年05月16日
- 従業員数
- 8名
資格情報
- 一級建築士
- 二級建築士
- 2名
- 木造建築士
- 福祉住環境コーディネーター
- 1名
- 福祉用具専門相談
- ホームヘルパー1級または2級
サービス内容
- 介護保険及び自治体の補助制度を利用した改修工事実績(過去3年間の累計額)
- 151万円以上
- 定期的な従業員研修
- あり
- 事業所独自のパンフレット
- なし
- 標準的な改修工事の価格表
- なし
- 事前説明のための書面
- あり
- 具体的な工事期間の提示
- あり
- 自治体の補助制度・ローン情報の提供
- あり
- 改修後の使用方法を記載した書面の提供
- あり
- 耐震診断専門家との連携
- あり
- アフターサービス
- あり
- 改修事例の情報提供方法
- 図面、写真
改修事例
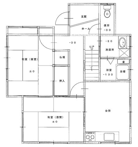
安心便利
お店を一人で切り盛りされていただけあって、とてもお元気ですが、土間の上がり降りがとても大変そうですし、危険を感じました。2階にも良く行かれるようでしたので土間のレベルを上げて、トイレを造り階段の蹴上を変えずに行う様にしました
- 改修箇所
- 洗面所
- 所在地
- 相模原市
- 住宅種別
- 戸建
- 構造 / 築年数
- 木造 / 30年
- 家族構成
- 独居(85歳)
- 工事日数
- 15日
- 工事面積
- 8m2
- 工事費
- 94万円 (内助成金18万円)
- 助成金の内容
- 介護保険
- 利用者の声
- 飲食店をしていたので、和室から履物を履いて土間に降りトイレに行ったり、階段に行き履物を脱いで2階に上がっていましたが、和室からそのままでトイレや洗面、階段へもいけるので、とても楽になり、安心して行動できます。
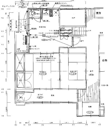
のびのび安心生活
目が御不自由な上、90歳というご年齢の割にはお元気で、家の中では歩くのも杖など使用せずに生活されておりますが、やはり移動や入浴などには補助が必要となり、バランス釜の扱いも危険な状況でした。廊下と洗面及び浴室の段差を廊下や洗面所の床の高さを調整することで解消しました。
- 改修箇所
- 所在地
- 相模原市
- 住宅種別
- 戸建
- 構造 / 築年数
- 木造 / 32年
- 家族構成
- 長女(48歳)次女(45歳)【母(90歳)】
- 工事日数
- 20日
- 工事面積
- 19m2
- 工事費
- 224万円 (内助成金98万円)
- 助成金の内容
- 介護保険・相模原市重度障害者住宅設備改善費助成制度
- 利用者の声
- 目が不自由なので、なれた家の中でも段差が怖く、風呂などはバランス釜で使いにくく浴槽のまたぎも深い上に、冬などはとても寒かったのですが、廊下から洗面所、浴室まで段差がまくなり浴室も暖かくとても安心して楽に行動することが出来ます。トイレも手摺りがついて、立ち上がり等が楽になりました。
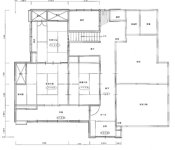
快適な暮らし
和風作りで各部屋の段差ももとより、各部屋も大きく続き間となった造りで寝室からトイレや台所が遠く、冬はとても寒くなります。これを一部屋に集めることで解消を図り、蓄熱暖房機を置き24時間暖房が行える状態にしました。
- 改修箇所
- 所在地
- 相模原市
- 住宅種別
- 戸建
- 構造 / 築年数
- 木造 / 27年
- 家族構成
- 独居(83歳)
- 工事日数
- 25日
- 工事面積
- 19m2
- 工事費
- 398万円 (内助成金60万円)
- 助成金の内容
- 高齢者等居住安定化推進事業
- 利用者の声
- 純和風住宅の為部屋と廊下、トイレなどに大きな段差が有り、寝室からトイレや居間、風呂、台所と全てが遠く行くまでが大変でしたし、出かける時も玄関から道路までも遠くきつい勾配で車も雨の日などには、庭先までも上がって来れませんでした。改装後は、ひとつの部屋の中にトイレ、台所があり、外出も部屋から直接出られますし、両側に手摺りのある階段を降りれば、道路で、車もそこまで来ていますので、とても便利になりました。手摺りの幅が、ちょうど良くて上り下りが楽になりました。
写真・動画
-
- 古いお宅などで、基礎が弱い建物の場合既存の基礎に配筋で結んだ補強用の基礎を造ります。又、部分的な補強として鉄板をボルトで既存の基礎と縫い合わせるように締結させる方法もあります。
-
- 1階部分が車庫や店舗などで耐震補強が必要な場合、このような補強を行います。耐震計算により柱脚部の基礎から
-
- 通常、耐震補強の壁は筋交いを使用しますが、それには、天井や床も解体する必要があります。写真の耐震補強壁を使用すれば、天井や床を解体せずに補強壁の工事を行うことが出来ます。
-
- 阪神淡路大震災のときに土台と柱が抜けてしまい倒壊した建物が多数ありました。その後実験を重ねて出来上がりましたのが、後付用ホゾ抜け防止金物です。
-
外観
-
- 大切な住宅の基礎にひび割れがあったら大変ですね。ひびの状況により補修にするか補強をしなくてはいけないか判断する必要があります。鉄筋の有無、コンクリートの強度測定等を行い、当社は補修や補強を行っています