更新日 2012-07-26 17:39:11
株式会社フジックスハートフル
お身体が動きにくくなったり、生活に危険や不安を感じられたら、まずはお住まいを改善しましょう。フジックスは改修工事と福祉用具を一体的に利用する「福祉住環境整備」の専門家です。ケアプランやお気持ちに沿った計画と経験豊かなスタッフによるアセスメント、生涯のモニタリングやアフターメンテナンス。どんなことでもご相談下さい(横浜市鶴見区、川崎市幸区、川崎市川崎区のみ対応)
- 所在地
- 〒230-0011
横浜市鶴見区上末吉1-1-9
- TEL
- 045-573-5921
- FAX
- 045-575-6432
- 営業時間
- 8:00~
- 定休日
- 日・祝祭日
- ホームページ
- http://fujix-happy.co.jp
運営者の概要
- 法人名 / 屋号
- 株式会社フジックスハートフル
- 代表者
- 渡邊 英和
- 所属団体
- 開設年月日
- 1978年06月14日
- 従業員数
- 5名
資格情報
- 一級建築士
- 二級建築士
- 1名
- 木造建築士
- 福祉住環境コーディネーター
- 2名
- 福祉用具専門相談
- 3名
- ホームヘルパー1級または2級
サービス内容
- 介護保険及び自治体の補助制度を利用した改修工事実績(過去3年間の累計額)
- 151万円以上
- 定期的な従業員研修
- あり
- 事業所独自のパンフレット
- なし
- 標準的な改修工事の価格表
- なし
- 事前説明のための書面
- あり
- 具体的な工事期間の提示
- あり
- 自治体の補助制度・ローン情報の提供
- あり
- 改修後の使用方法を記載した書面の提供
- なし
- 耐震診断専門家との連携
- あり
- アフターサービス
- あり
- 改修事例の情報提供方法
- 図面、写真
改修事例
いきいき、のびのび、車椅子生活
奥様の身体状況の詳細や、在宅での介助動作や暮らしのイメージを詳しくお話しいただけたため、機器選定や納まりなどに誤りを生じることなく適切な改修工事が実施できました。ご主人様のご協力とご配慮に感謝します。
- 改修箇所
- 所在地
- 横浜市
- 住宅種別
- 戸建て
- 構造 / 築年数
- 在来工法 / 27年
- 家族構成
- 夫(63歳)・妻(62歳)
- 工事日数
- 30日
- 工事面積
- 39m2
- 工事費
- 634万円 (内助成金140万円)
- 助成金の内容
- 利用者の声
- 妻が罹患して介護を要することとなり、バリアフリーで安心して暮らせる住環境を望んでいました。すべて希望が叶い、細かなところまで配慮していただき、快適に介護生活を送っています。
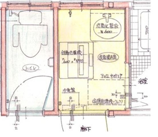
いきいき、のびのび、車椅子生活
利用者様の危険・不都合・不安を解消することは今を幸せに暮らしていただくこと。福祉住環境整備における予防的計画をとり、将来必要となりうる様々な下準備をすることとした。主には、どのような歩行補助用具を使われても取り回しがラクな面積に拡張したり、 安全に使用できる便器にするなど、様々なケースを想定した改造計画とした。
- 改修箇所
- 洗面所
- 所在地
- 横浜市
- 住宅種別
- 戸建て
- 構造 / 築年数
- 軽量鉄骨造 2階建1階部分 / 25年
- 家族構成
- 夫婦とも68歳 ・ 長男35歳 3人家族
- 工事日数
- 工事面積
- 4m2
- 工事費
- 120万円 (内助成金0万円)
- 助成金の内容
- 利用者の声
- 70歳を目前にして、気力・体力に衰えを感じ始め、現在の住まいに日常生活を合 わせられるかが大きな不安になっている。もし、杖や車椅子での生活になった場合、現在の水まわり設備や構造では暮らせないと思っている。段差につまづくようになったし、そもそも洗面脱衣室が狭くて使いづらい。どんな身体状況になっても困らないように、あらかじめ準備しておくことを含めたリフォームをしたい。
写真・動画
-
スタッフ
- すべてのお客様に愛を。すべての行動に真心を。すべての事象に感謝を。フジックスハートフルは、福祉住環境整備のプロフェッショナルです。
-
展示場
- 段差がある狭い居住空間を再現した展示場。福祉用具や住設危機でバリアフリー化をご確認いただけます鶴見中央ケアプラザ内で運営しています。
-
設計施工
- 住宅のみならず、デイサービスセンターやビル・施設の内装も設計施工しています。
-
お客様感謝祭
- 春と秋にランドマークタワーで開催しているお客様感謝祭の風景。毎回楽しいイベントで盛り上がっています。毎回の雉本部長のワイン講義や、渡邊社長のソバ打ちも好評。
-
本社外観
- TOTOのパーツショップと介護用品ショップがあります。オムツ類は種類が豊富、福祉用具も多数展示しています。