更新日 2012-11-08 16:03:10
高住研キヨタ株式会社
高齢者、障害者の方を専門に住宅改修を行なっており、4000件以上の改修実績がございます。介護予防からターミナルケア、進行形難病の方まで様々なケースの実績が沢山あり、豊富な経験と知識が大きな強みになっております。副用具貸与、販売もおこなっており、福祉用具、住宅改修それぞれの良い所を最大限生かす改修提案にも自信があります。
- 所在地
- 〒226-0028
神奈川県横浜市緑区いぶき野1-21
- TEL
- 045-507-7331
- FAX
- 045-983-6776
- 営業時間
- 9:00~18:00
- 定休日
- 日・祝祭日
- ホームページ
- http://kojukenkiyota.com
運営者の概要
- 法人名 / 屋号
- 高住研キヨタ株式会社
- 代表者
- 坂巻道修
- 所属団体
- 開設年月日
- 2002年06月01日
- 従業員数
- 20名
資格情報
- 一級建築士
- 1名
- 二級建築士
- 2名
- 木造建築士
- 福祉住環境コーディネーター
- 10名
- 福祉用具専門相談
- 14名
- ホームヘルパー1級または2級
- 4名
サービス内容
- 介護保険及び自治体の補助制度を利用した改修工事実績(過去3年間の累計額)
- 151万円以上
- 定期的な従業員研修
- あり
- 事業所独自のパンフレット
- あり
- 標準的な改修工事の価格表
- なし
- 事前説明のための書面
- なし
- 具体的な工事期間の提示
- あり
- 自治体の補助制度・ローン情報の提供
- あり
- 改修後の使用方法を記載した書面の提供
- あり
- 耐震診断専門家との連携
- あり
- アフターサービス
- あり
- 改修事例の情報提供方法
- 図面、写真
改修事例
気軽に車椅子で外出
改修にあたり、スロープ設置案と段差解消機設置案の2パターンありました。リビングからスロープを設置して車椅子で外出する案は段差解消機(レンタル)の機械を使わないため月々のレンタル料金が発生しないとうメリットがありますが、大きくお庭をいじらなければいけない点で不採用になり最低限の工事範囲で済むリフト設置工事になりました。段差解消機の設置条件がそろっていたので工事はし易かったです。
- 改修箇所
- 所在地
- 横浜市
- 住宅種別
- 住宅一戸建て
- 構造 / 築年数
- 木造 / 10年
- 家族構成
- 夫(本人)62歳 妻 59歳
- 工事日数
- 3日
- 工事面積
- 8m2
- 工事費
- 63万円 (内助成金0万円)
- 助成金の内容
- 介護保険 横浜市高齢者住環境整備事業 横浜市障害者住環境整備事業
- 利用者の声
- 工事前は家から出る事が出来なく、必要最低限の外出を娘達に介助してもらいふらふらになりながら道路まで出ていました。外に出ようという気持ちも下がり、家に引きこもっている状態がでしたが、改修を行い寝室から気軽に外出が出来る様になり昔の様に外に出るのが楽しみになりました。娘達の負担も大幅に減らす事が、出来住宅改修をして本当に生活が変わりました。
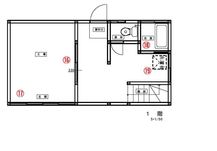
車椅子になっても住み慣れた我が家に住み続けられる様に
築40年と建物が古く耐震補強工事と合わせて住宅改修を進めました。病院の退院日が決まっており3つの助成金の許可までにかかる日数を計算しながら工事日程を決めていくのが大変でした。また入院中であり身体機能の状態把握に病院の方達と連携を取りながら進めていきました。
- 改修箇所
- 所在地
- 横浜市
- 住宅種別
- 戸建
- 構造 / 築年数
- 木造二階建て / 40年
- 家族構成
- 夫 73歳 妻 71歳(本人)
- 工事日数
- 30日
- 工事面積
- 30m2
- 工事費
- 800万円 (内助成金218万円)
- 助成金の内容
- 介護保険 横浜市高齢者住環境整備事業 横浜市木造住宅耐震改修促進事業
- 利用者の声
- 自宅兼工場でしてたので、1Fの居住スペースは浴室・脱衣室・トイレ・のみで、2Fに居間・寝室・トイレ・台所がありました。家内が脳梗塞を発症し車椅子生活での退院になり施設に入る様かと思っていましたが、住宅改修で1Fに住める様になる事を聞き、出来る限り住み慣れた我が家で妻と住み続けたいと思っておりました。
写真・動画
-
外観写真1
- 中山ケアプラザのお近くです。
-
スタッフ
- 経験豊富なスタッフが柔軟に対応させていただきます。